- Katılım
- Ocak 22, 2025
- Mesajlar
- 244,967
- Tepkime puanı
- 0
- Puanları
- 36
Finlandiya, 1950 yılından itibaren inşaat endüstrisinde yalıtımlı prekast elemanlar tercih etmeye başlıyor. Bu yenilikle inşaat maliyetleri düşüyor ve inşaat sektörü hızlanıyor ama aynı zamanda nem hasarına karşı savunmasız ve bakımı zor yapılar ortaya çıkıyor.
Finlandiya'da 1900'lerden kalma tuğla yapılara bakıldığında bakıma daha az ihtiyaç olan, yazın ısıyı, kışın soğuğu depolayan, enerji verimliliğinin yüksek olduğu yapılar görülüyor. Bu yüzden Helsingin Muurarimestari tasarlanırken eski Finlandiya binalarından ilham alınıyor. Geleneksel malzemeler ve modern inşaat yöntemleri kullanılarak daha düşük maliyet ile yüksek verimli bir yapı tasarlanması amaçlanıyor.
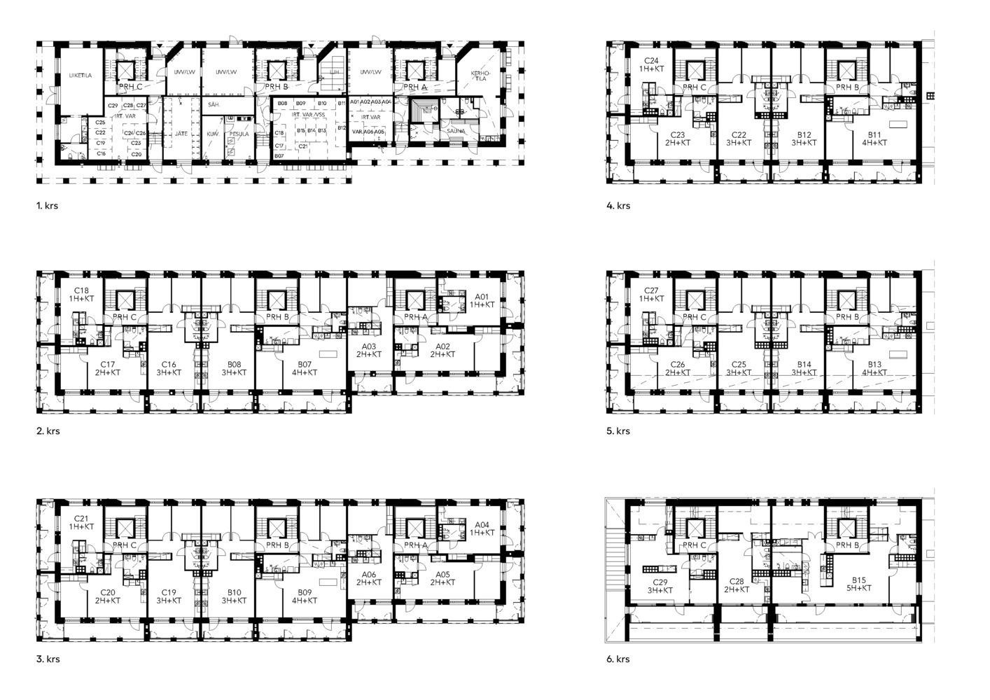
Konutta 29 adet daire bulunuyor. Dairelerin her biri birbiri ile bağlantı sağlarken aynı zamanda hava akışını kolaylaştıracak düzeyde bir geometri ile tasarlanıyor. Örneğin dairelerin en az iki yöne açılması sayesindedoğal havalandırma sağlanırken binanın tasarımı için de geleneksel yöntemlere başvuruluyor.
Helsingin Muurarimestari tasarlanırken yüz yıl öncesinde kullanılan tuğla kalınlıkları aynı ölçülerde tercih edilerek 60 ile 75 cm kalınlığında kullanılıyor. Bina, geleneksel duvar işçiliği ile modern inşaat yöntemleri birleştirilerek günümüzün çevresel sorumluluklarına da bir çözüm getiriyor.
Proje | Helsingin Muurarimestari |
| Mimar | AVARRUS Architects |
| Yer | Helsinki / Finlandiya |
Baş mimar | Pauli Siponen |
Fotoğraflar | Tuomas Uusheimo |
Tamamlanma yılı | 2024 |
| Tasarım takımı | Noona Lappalainen, Niilo Ikonen, Atte Aaltonen, Iida Siponmaa, Erno Laakso |